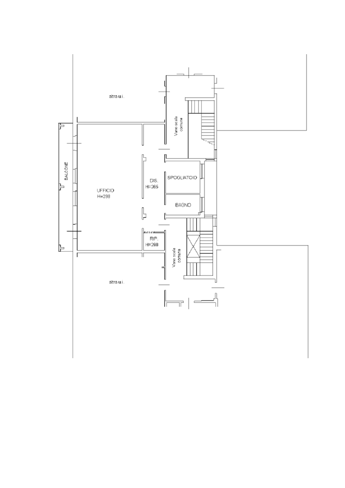
Parma NORD, vicinissimo a tangenziale e casello autostradale, UFFICIO posto al secondo piano con ascensore, composto da ingresso, ampio vano eventualmente divisibile con balconata, archivio, ripostiglio e servizio. Luminoso, termoautonomo, impianto elettrico certificato, da sistemare internamente. Comodo ed ampio parcheggio antistante, libero subito.

Galleria Crocetta 9/a
43126 Parma
0521981372
3356302877